Savannah Shingle Home Revival
Residential - Single Family | 3,120 sqft | Savannah, GA | Completed 2024
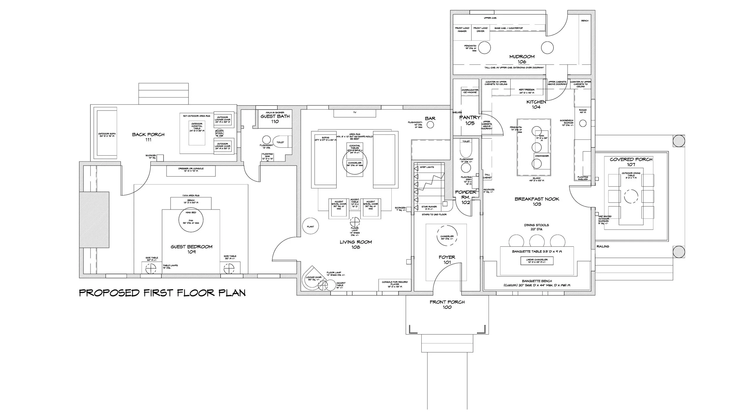
Featured in Magnolia Network’s In With The Old (Season 6 Episode 5), the goal for the design of this home was to create a space infused with the same energy and love embodied by the Condon Family. As the Interior Designer on this project, my role was to manage and oversee the complete design of this major renovation. From contacting vendors, making construction finish selections, consulting on interior styling and artwork, to even handcrafting a bench seat, this entire project was a labor of love. While designing, I utilized programs such as AutoCAD and Sketchup to draft floor plans and present the space in 3D before construction. One of my favorite parts of the design process is sketching out fun ideas, just like this one. Whenever possible, I find it vital to infuse every project with custom details that cater to the client’s needs. The Condon’s love having huge family get-togethers so cutting out the dead space under the stairs for a hidden bar felt like a no-brainer! And mark my words: one day we will get a hair-on-hide wallcovering in there with a cheeky sconce!
It feels incredible to have had the chance to work with globally recognized brands as well as local artisans, to make each space feel unique and personalized the client’s needs. Scroll all the way down to see the before photos!

Exterior - Front

Foyer - Facing Front Door

Foyer - Stair & Powder Room

Foyer - Facing Living Room

Dining Area Facing Foyer

Dining Area

Dining Area

Kitchen Facing Dining Area

Kitchen Facing Laundry Room

Kitchen Hardware Detail

Kitchen Backsplash Detail

Kitchen Countertop Detail

Veranda Facing Kitchen

Veranda View 1

Veranda View 2

Living Room View 1 - Facing Foyer

Living Room View 2 - Facing Mother-in-Law Suite

Living Room View 3

Living Room View 4

Living Room View 5

Living Room - Hidden Bar

Hidden Bar Interior

Mother-in-Law Suite Built-in Detail

Mother-in-Law Suite View 1

Mother-in-Law Suite View 2

Mother-in-Law Suite View 3

Mother-in-Law Suite Fireplace Detail

Mother-in-Law Suite View 4

Mother-in-Law Suite View 5

Primary Bedroom View 1

Primary Bedroom View 2 - Facing Primary Bathroom

Primary Bedroom View 3 - Facing Hall

Primary Bedroom Fireplace Detail 1

Primary Bedroom Fireplace Detail 2

Primary Bathroom View 1 - Vanity

Primary Bathroom View 2

Primary Bathroom View 3 - Tub

Primary Bathroom Shower Detail

Primary Bathroom View into Walk-in Closet
Kelly Duncan at Pelican Watch Furniture
Window Still Photography
Vintage Home Restoration
Engel Entertainment
Chelsea Phillips Group
Annaliese Designs
Kelly Duncan at Pelican Watch Furniture Window Still Photography Vintage Home Restoration Engel Entertainment Chelsea Phillips Group Annaliese Designs
Sherwin Williams
House of Antique Hardware
San Diego Hardware
Currey & Co
Vendors on Victory
York Wallcoverings
Regina Andrew
AGM Imports
FORNO Appliances
TileBar
Schumacher
One Kings Lane
Sherwin Williams House of Antique Hardware San Diego Hardware Currey & Co Vendors on Victory York Wallcoverings Regina Andrew AGM Imports FORNO Appliances TileBar Schumacher One Kings Lane
Allison Hall
Tiffani Taylor
Suzanna Toole
Kasey Jeffrey
Allison Hall Tiffani Taylor Suzanna Toole Kasey Jeffrey
The “Before Photos”
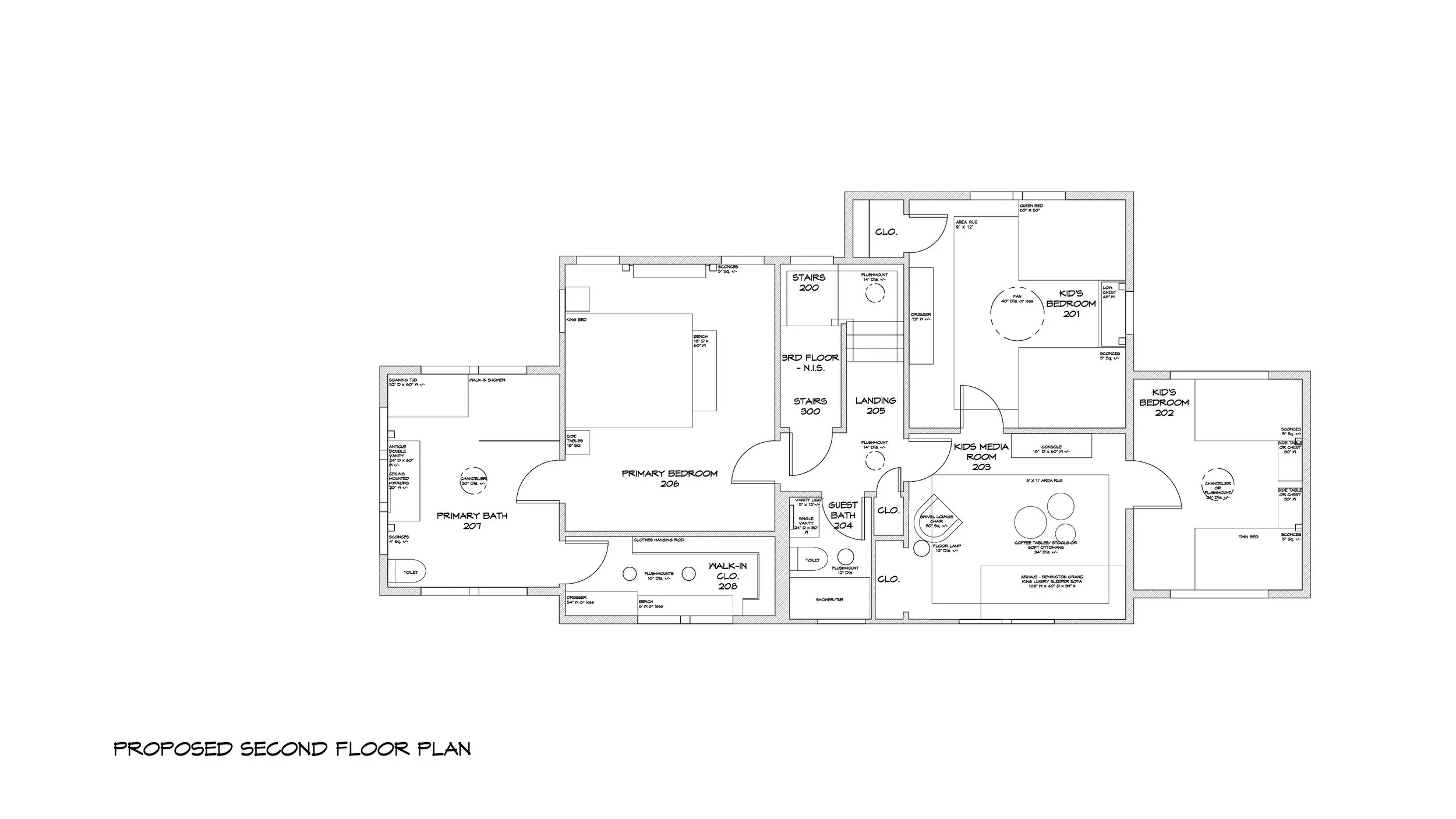
This 1920s treasure took on a full transformation. We didn’t waste any square footage by turning small unused spaces into functioning rooms. The carport that was too thin to drive under became a breezy Veranda and the crawl space under the stair landing became a hidden Walk-in Bar. We got rid of the small coat closet at the base of the stairs and turned it into a color-washed Powder Room while the former Study became a quaint Mother-in-Law Suite, complete with a walk-in shower and a personal porch to the Backyard.








